SchwalbenPark_logo_small

Das Projekt

Der Schwalben Park 
ist ein Projekt von build-ing. limes-invest GmbH & Co KG 
in Bad Schwalbach, bei dem Laden- & Gewerbeflächen entstehen.

Im Gewerbegebiet „Ober der Hardt“ in Bad Schwalbach bieten wir neue attraktive Ladenflächen an. Der Bau hat bereits im Sommer 2021 begonnen: verkehrsgünstig und gut sichtbar, nahe der stark frequentierten Bundesstraße 260 (Bäderstraße) gelegen, entstehen zur Miete verschiedene Ladenflächen zwischen 100 qm und 800 qm Fläche. Die Größen der einzelnen Flächen können den Bedürfnissen noch angepasst werden. Parkplätze sind in ausreichender Anzahl vorhanden. Im oberen Geschoss des Gebäudes wird eine Soccerhalle entstehen. 

Profitieren Sie von der guten Erreichbarkeit und der Frequenz durch die in der Nachbarschaft etablierten Geschäfte. In direkter Nachbarschaft hat ein privater Bau- und Gartenmarkt mit Tierbedarf eröffnet. Des Weiteren befinden sich Einkaufsmagnete wie ein Edeka Markt, eine Rossmann Drogerie, ein Deichmann Schuhmarkt und einige andere Geschäfte in unmittelbarer Nähe. Eine Bushaltstelle der RMV Linien 201 und 212 befindet sich wenige Meter entfernt. Hier entsteht ein Einkaufs – Hotspot für Bad Schwalbach und die umliegenden Gemeinden.
VERMARKTUNG: DIMA DOMIZILE

ORT: NIKOLAUS-AUGUST-OTTO-STRAßE 16, 65307 BAD SCHWALBACH

ETAGENANZAHL: 2

MIET-FLÄCHEN EG: AB 100QM bis 800QM
MIET-FLÄCHEN OG: BEREITS VERMIETET

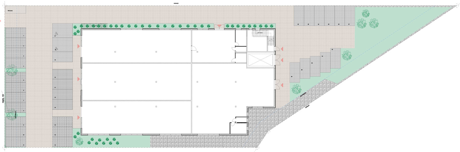
Flächenübersicht

32 PKW-Stellplätze
Beispielgrundriss
Ladenfläche 1 ca. 218 qm
Ladenfläche 2 ca. 240 qm
Ladenfläche 3 ca. 217 qm
Lagerfläche 1 ca. 85 qm
Lagerfläche 2 ca. 280 qm
Die Flächen können angepasst oder zusammengelegt werden!

Vermietung

Die Miet-Flächen werden durch Dima-Domizile vermarktet.

DIMA DOMIZILE
Frau Sigrid Dickman
Mobil: 0157 – 39 59 20 30

Zukünftige Mieter

Derzeit sind bereits die Flächen im Obergeschoss vermietet.
Zu unseren zukünftigen Mietern zählen aktuell:

Datenschutzerklärung

Das Unternehmen build-ing. limes-invest GmbH & Co KG nimmt den Schutz Ihrer personenbezogenen Daten sehr ernst. Daher möchten wir, dass Sie wissen, wann welche Daten auf dieser Website erhoben werden und wie diese verwendet werden. Wir halten uns hierbei selbstverständlich an die Datenschutzgrundverordnung der EU (DS-GVO). Grundsätzlich verfolgen wir auf unserer Website das Ziel der Datensparsamkeit. Daher werden bei der Nutzung unserer Website keine Cookies erstellt/verarbeitet. Darüberhinaus ist unsere Website frei von Werbung und Trackingverfahren (wie bspw. Google Analytics).

Name und Anschrift des Website-Betreibers
build-ing. limes-invest GmbH & Co KG 

Fabian Kschischo 

Neukirchner Straße 51 

65510 Hünstetten
E-Mail: info@build-ing.com

Welche Daten werden beim Zugriff auf unserer Website verarbeitet?
Bei jedem Zugriff auf unser Internet-Angebot werden bestimmte Daten über den Zugriff (Name der abgerufenen Datei, URL, Datum und Uhrzeit des Abrufs, übertragene Datenmenge, IP-Adresse des zugreifenden Hostsystems) in einer sogenannten Protokolldatei (englisch: Server-Logfile) abgespeichert.

Diese gespeicherten Daten werden lediglich zur Behebung von technischen Problemen oder bei Hinweisen auf rechtswidrige Nutzung genauer analysiert. Sie dienen ausschließlich eigener statistischer Auswertung und dem Interesse der Betriebssicherheit. Die Daten werden entsprechend geltendem Recht aufbewahrt und gelöscht. Rechtsgrundlage ist hierbei Artikel 6 Abs. (1) lit. f DS-GVO. Die Daten werden nicht an Dritte weitergegeben.

Bei einer Anfrage / Nachricht, die Sie uns per E-Mail zusenden, erfolgt die Eingabe Ihrer personenbezogenen Daten stets auf freiwilliger Basis.
Daten, die Sie uns per E-Mail zusenden, werden nur zur Bearbeitung Ihrer Anfrage verwendet. Die Daten werden nicht an weitere dritte Personen/Unternehmen gegeben oder für Werbezwecke verwendet. Rechtsgrundlage zur Verarbeitung dieser Kontaktdaten ist hierbei Artikel 6 Abs. (1) lit. b DS-GVO.

Recht auf Auskunft und Löschung
Sie haben das Recht, jederzeit Auskunft über Ihre bei uns gespeicherten personenbezogenen Daten zu erhalten. Im Rahmen der gesetzlichen Vorgaben ist es Ihnen möglich, deren Korrektur, sowie Löschung, zu beantragen.

Name und Anschrift der für den Datenschutz bei build-ing. limes-invest GmbH & Co KG Verantwortlichen 

Falls Sie weitere Fragen zum Thema Datenschutz build-ing. limes-invest GmbH & Co KG haben, wenden Sie sich bitte direkt an uns.

Ansprechpartner: Fabian Kschischo
Kontaktdaten: info@build-ing.com

 
Links zu Internet-Seiten anderer Anbieter
Unser Online-Angebot enthält ggf. Links zu Internet-Seiten anderer Anbieter. Wie auch auf den Inhalt, haben wir keinen Einfluss darauf, dass diese Anbieter die Datenschutzbestimmungen einhalten. Deren Inhalte machen wir uns nicht zu eigen. Änderungen der Datenschutzerklärung Im Zuge der Weiterentwicklung unserer Internet-Seiten und der Implementierung neuer Technologien können auch Änderungen dieser Datenschutzerklärung erforderlich werden. Wir werden Sie dann an dieser Stelle darüber informieren.

Impressum

Verantwortlich für den Inhalt 
Fabian Kschischo

 

Kontaktdaten 

build-ing. limes-invest GmbH & Co KG 

Fabian Kschischo 

Neukirchner Straße 51 

65510 Hünstetten

E-Mail: info@build-ing.com